Stevige karakters maken Strijps buurtje
Project:
Opdrachtgever:
Locatie:
Programma:
Periode:
Status:
Strijp S Delta
Sint Trudo
Eindhoven Strijp S
236 woningen, voorzieningen, commerciële ruimte
2023 – heden
In ontwikkeling
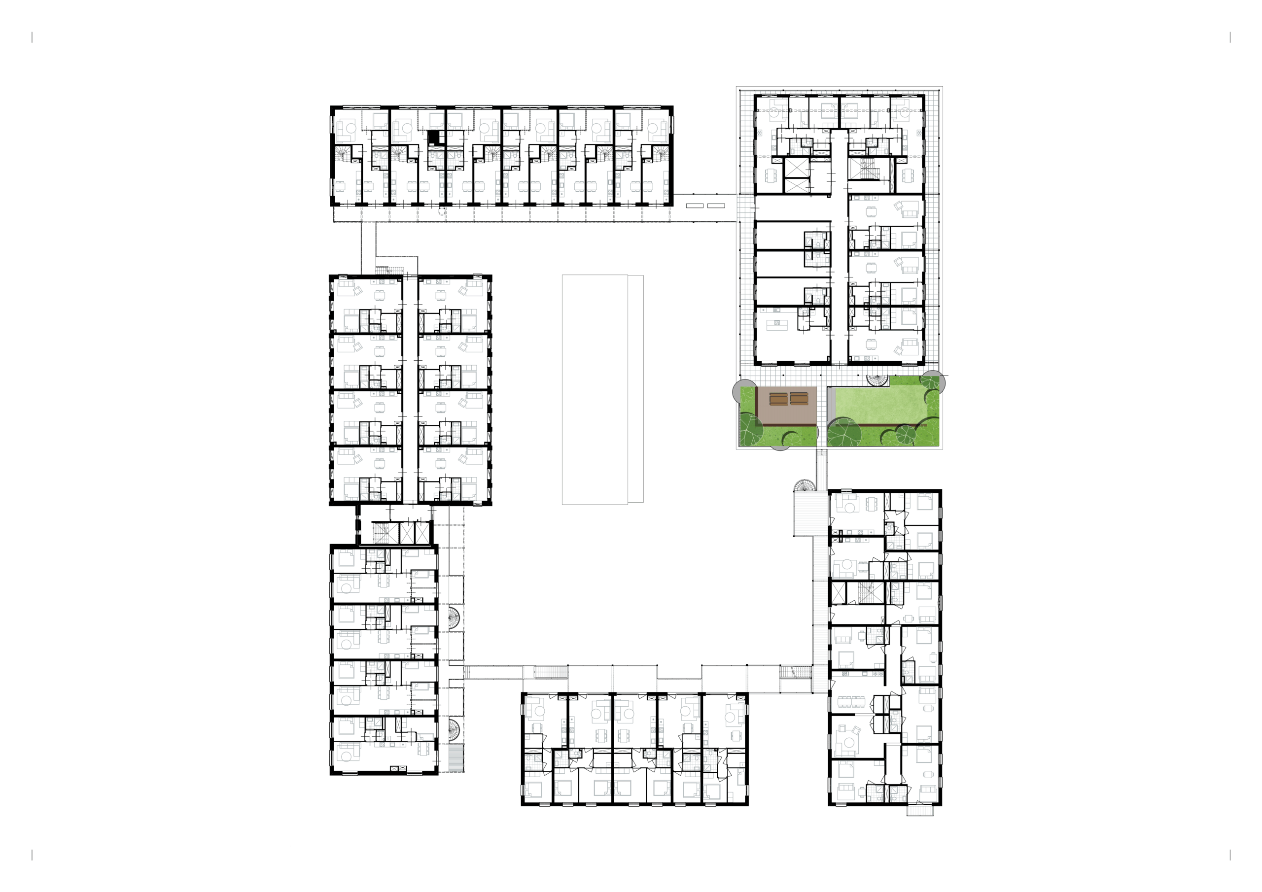
Op voormalig Philipsterrein Strijp S realiseren we een bijzonder woonprogramma. Op kavel Delta, tussen het knusse Philipsdorp en de hoog-stedelijke fabrieksgebouwen, bouwen we een woon-community met 236 woningen. We werken in teamverband met opdrachtgever Trudo, woongemeenschap Klein Zwitserland, ontwerppartners Werkstatt en Landlab en Domos Soteria – een hospice voor jong volwassenen. Het robuuste karakter van de 7 eigenzinnige bouwblokken en de licht constructieve verbindingselementen wijzen naar het industriële verleden van Strijp. Een opgetild maaiveld en de leef-galerijen verbinden de gebouwen en de bewoners op verschillende niveaus.

Vermeulen, P. (2006). Luchtfoto Philipsfabrieken Strijp S. Eindhoven in beeld. Geraadpleegd op 9 december 2025
Onderscheidende karakters, opgetild maaiveld, verbindende constructie en ruime ontsluitingskernen
Een sociale woon-community in een robuuste leefomgeving
Het ontwerpen van een sterke woon-community was het eerste uitgangspunt voor initiatiefnemers Klein Zwitserland. Toekomstige bewoners van de woongemeenschap zijn daarom al vroeg betrokken bij ontwerpkeuzes (hardware) en zullen ook actief bijdragen aan het activeren van de community (software). Het buurtje bestaat uit grote bonkige volumes met riante gevelopeningen en neutrale doorlopende gevelritmieken, geïnspireerd op de generieke fabrieksgebouwen van Strijp. In kleur is enerzijds de rode kleur van Philipsdorp te zien. Anderzijds komt het wit van de Hoge Rug terug en het geel dat te zien is in de oude Philips bedrijfsschool en het Natlab. Elk gebouw maakt haar eigen interpretatie naar de context. De gebouwen worden leefwerelden op het maaiveld waar margezones de gebouwen prettig in de robuuste context laten landen.
Begane grond – verdieping 1-6
Lichte verbindingen geïnspireerd op Strijpse leidingstraten
Op het voormalige fabrieksterrein worden veel gebouwen verbonden door leidingstraten: een lichte stalen constructie waarop kanalen en leidingen in het verleden op een rationele wijze van gebouw naar gebouw geleid werden. Nu de fabrieken verblijfsplekken zijn geworden, vormen de leidingstraten routes voor mensen. Ze geven richting en accommoderen beweging. Dit principe hebben we geadopteerd. Een lichte structuur verbindt de 7 robuuste gebouwvolumes. Deze vormt een permeabele en gemoedelijke schil die aanmoedigt tot ontmoeting en beweging.


Leidingstraten Strijp S locatie bezoek
Bijzondere woningtypes
Met sociale- en middenhuur woningen voor verschillende doelgroepen, grosswoningen voor wooncoörporatieleden en hospice-woningen voor jongvolwassenen, creëren we een bijzonder uitgebreide woningcatalogus. Uitgesproken en doordachte woningtypes bieden ruimte aan de diverse woonwensen. Er zijn woningen in een meer privé setting aan de leef-galerij of in de toren, collectief wonen met een voortuin aan de straat of aan de binnentuin, en wonen in een groepssetting met gedeelde faciliteiten.

Maisonnette
Wasknijper

Maisonnette
Gezinswoning aan de straat

Galerij woning
Royale studio

Maisonnette
Ruime gezinswoning

Ruime starterswoning

Maisonnette
Woning aan de binnentuin
Domos Soteria – hospice voor jongvolwassenen
Domos Soteria krijgt een betekenisvolle plek binnen de community op de eerste verdieping in de woontoren. Een warm, beschermd thuis voor jongvolwassenen met een intensieve zorgvraag.
Gerelateerde projecten






















