Senioren Maken Het Hof
In de wijk Reigersbos in Amsterdam-Zuidoost komt een wooncomplex voor ouderen van 55+ die willen verhuizen naar een geschikte, kleinere woning in de buurt. Een klankbordgroep van mensen uit de buurt koos ANA architecten om in samenwerking tot een ontwerp te komen. De sessies met een klanbordgroep maakten duidelijk dat de wensen van ouderen niet eenduidig zijn. Juist de verschillende wensen zijn aanleiding geweest voor het ontwerp van Rhenenhof. De behoefte aan contact, maar ook aan privacy en veiligheid zijn belangrijke thema’s die we op verschillende manieren hebben verwerkt in dit plan.
Project
Jade
Opdrachtgever
Eigen Haard
Locatie
Rhenenhof, Amsterdam Zuidoost
Programma
55 sociale huurwoningen
Periode
2023-heden
Status
In aanbouw
Beelden
ANA architecten
Project:
Opdrachtgever:
Locatie:
Programma:
Periode:
Status:
Renders:
Jade
Eigen Haard
Rhenenhof, Amsterdam Zuidoost
55 sociale huurwoningen
2023-heden
In aanbouw
ANA architecten
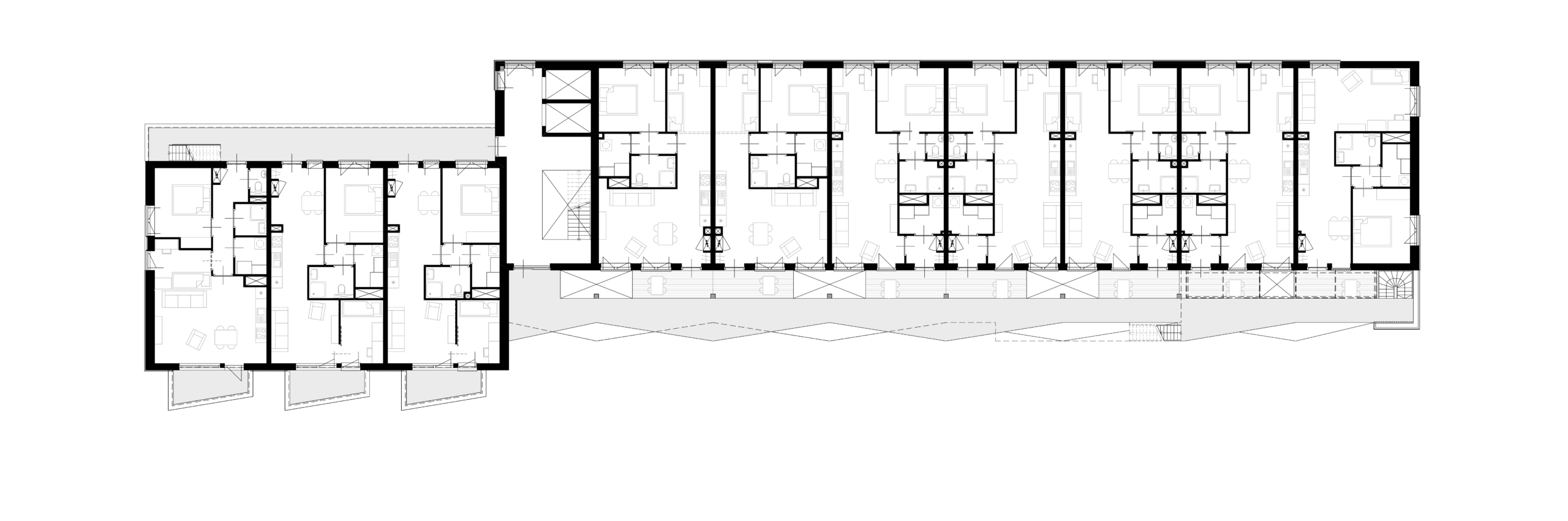
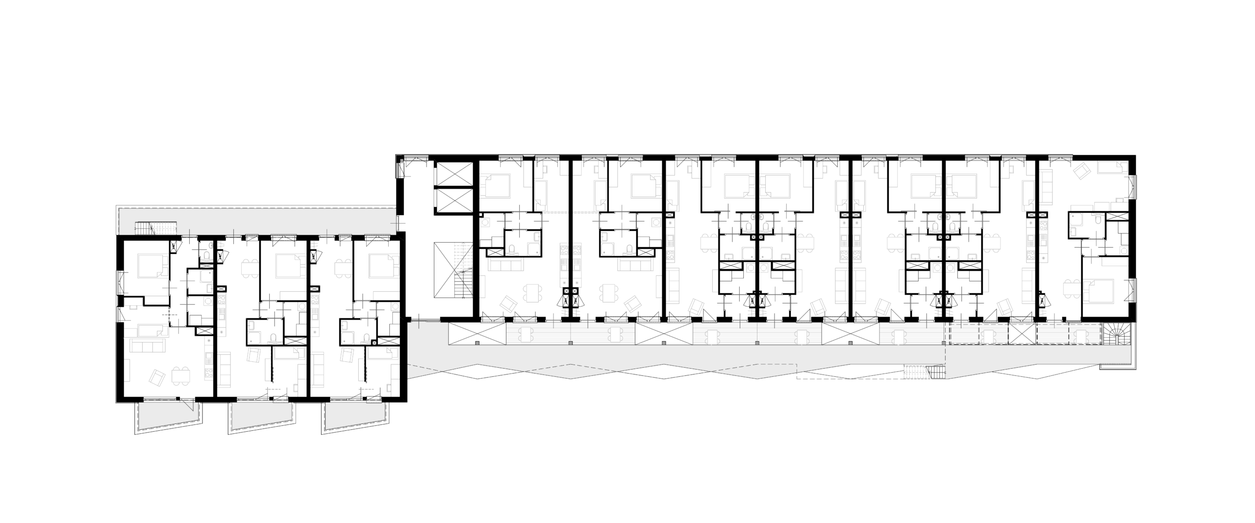
Rhenenhof als poort van het Reigersbos
Jade grenst aan het Rhenenhof en heeft door haar ligging een duidelijke harde en zachte kant. De noordoostgevel grenst direct aan de Reigersbosdreef, de gevel heeft aan deze zijde een wat meer formeel karakter. De zuidwestgevel reageert met een informeel karakter op het groene hof tussen de nieuwbouw en het bestaande Rhenenhof. Een leefgalerij met ruime balkons en een gemeenschappelijke ruimte naast de hoofdentree gaan een relatie aan met de omgeving en stimuleren ontmoetingen tussen bewoners.


Formele en informele zijde

Woningen privé en leefgalerij

Ontmoeten en ontsluiting
Formele zijde aan de Reigersbosdreef
Samen ontwerpen met ouderen
‘ANA architecten spreekt mij het meest aan,’ vertelt bewoner Fokke Wierda. ‘ANA heeft veel onderzoek gedaan naar de woonsituaties en woonwensen van ouderen en naar de gevolgen van de toenemende vergrijzing. De intensieve samenwerking met toekomstige bewoners gaf ons veel nieuwe inzichten voor het ontwerp van Jade én voor toekomstige woonprojecten. Uit de eerste workshop bleek dat ouderen verschillende wensen hebben als het gaat om de behoefte aan contact en de behoefte aan privacy. Een oplossing om gehoor te geven aan deze doelgroep was dus niet om tot één oplossing te komen, maar om een ontwerp te creëren waar verschillende woonbehoeftes toch samen kunnen leven. We hebben dit vertaald in een ontwerp waarin ruimte is voor verschillende wensen.

Gradiënt van interactie met de buren
Het gebouw heeft een duidelijke structuur die is ontstaan als reactie op de uiteenlopende behoeftes aan privacy van de bewoners. De ‘’kop’’ van het gebouw is voor bewoners die gesteld zijn op hun privacy, met riante balkons op het zuidwesten en een formele galerij aan de straatzijde. In de ‘’staart’’ grenzen woningen aan een leefgalerij, voor de ouderen die graag een praatje met de buren maken. De centraal gelegen gemeenschappelijke ruimte verbindt de kop met de staart. Uit de participatiesessies bleek dat de één graag een praatje maakt met de buren, terwijl de ander juist op zoek is naar rust. In een gradiënt van ‘’behoefte aan interactie met de buren’’ zijn drie type woningen ontworpen die elk een steeds intiemere relatie aangaan met de leefgalerij.

Diversiteit op woningniveau
Het ontwerp van Jade bestaat uit één woningtype met vijf verschillende indelingen, passend bij de ligging in het gebouw. In de kop van het gebouw woon je meer privé, terwijl in de staart meer contact met buren mogelijk is. De woningen in de staart zijn zo ingedeeld dat ze aansluiten op verschillende wensen voor contact. Woningtype A heeft een open woonkamer aan de leefgalerij. Woningtype B heeft een doorzonwoonkamer. Bij woningtype C ligt de woonkamer verder van de leefgalerij en meer beschut. Zo is er voor iedereen een passende woning. Op de begane grond komen zeven compacte studio’s voor jongeren. Zij krijgen zo de kans om te starten op de Amsterdamse woningmarkt. De combinatie van jongeren en ouderen zorgt voor levendigheid in en rond het gebouw.
Zichtlijnen stimuleren ontmoetingen
Een belangrijke bevinding van de participatiesessies was de behoefte naar visuele controle. ‘’Ik ga alleen naar de ontmoetingsruimte als ik weet dat er iemand zit’’, beaamt één van de bewoners. Alle goede ideeën hebben we meegenomen in het ontwerp door duidelijke zichtlijnen te ontwerpen waardoor ontmoetingen worden gestimuleerd. Vanaf de leefgalerij is er zicht op de gemeenschappelijke ruimte bij de entree zodat bewoners weten waar ze aan toe zijn.

Gerelateerde projecten














